Не упусти свой шанс! Последние акции от застройщиков  ▼

Продается 2-комнатная квартира, Заречная ул., 3

7 825 000 Р

Сабурово пгт (Красногорск гор. округ)

Заречная ул.3

Дата публикации: 23 декабря 2025

Дата обновления: 26 апреля 2026

Телефон: 
Показать телефон

+7 (499) 372-92-13

Агентство:  МИЭЛЬ

Название: ЖК "Митино О2"

От застройщика: 0 квартир в продаже

Этаж: 3 / 9

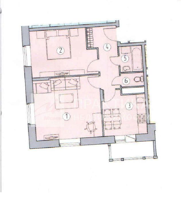
Общая: 50,6 м2

Жилая: 31,6 м2

Кухня: 8,3 м2

Комнаты: не указано

Балкон/лоджия: не указано

Лифт: есть лифт

Окна: окна на улицу

Санузел: раздельный

Мусоропровод: не указано

Состояние квартиры: требуется ремонт

Тип дома: монолитно-кирпичный

Год постройки: 2020

Территория: огороженная

Парковка: не указано

Статус сделки: продажа

Сделка: прямая продажа

Собственность: не указано

Основание права собственности: не указано

Описание

Код объекта: 1968458.Продается светлая 2-комнатная квартира в новом шикарном ЖК "Митино О2".Уникальное предложение для тех, кто ищет комфортное жильё в живописном районе Подмосковья! Описание квартиры Квартира расположена на третьем этаже восьмиэтажного монолитно-кирпичного дома. Общая площадь составляет 50,6 кв. м, кухня 8,3 кв. м. ,комнаты 18,5 и 13.1 кв. м + лоджия, свободная планировка. Санузел раздельный. Окна выходят на две стороны, на улицу и на лес. В квартире светло и солнечно. Тишина и спокойствие в 10 минутах езды от центра Красногорска! Без отделки и мебели, что позволяет новым владельцам воплотить свои дизайнерские идеи. Планировка квартиры позволяет сделать кухню-гостиную или оставить две изолированные комнаты! Дом и двор Дом переменной этажности. Двор без машин с оборудованными детскими и спортивными площадками. Есть лифт, чистый подъезд. Наземный и подземный паркинги, есть кладовое помещение. Кладовые помещения расположены на минус первом этаже дома. Тихие и дружелюбные соседи. Транспортная доступность Рядом расположена остановка маршрутки 1212, которая ходит каждые 5-7 минут. До метро "Пятницкое шоссе", "Митино", "Волоколамская", МЦД-2, можно доехать за 20 минут. Инфраструктура рядом В жилом комплексе "Митино О2" есть вся необходимая инфраструктура для комфортной жизни: аптеки, салоны красоты, супермаркеты, кофейни, пункты выдачи интернет заказов, детский сад и школа. Условия продажи Один взрослый собственник. Свободная продажа. Без обременений. Быстрый выход на сделку. Не упустите шанс стать обладателем этой замечательной квартиры! Звоните нам прямо сейчас, чтобы узнать больше и записаться на просмотр. Работать с МИЭЛЬ выгодно и надёжно покупателю выдаётся Правовой сертификат, гарантирующий юридическую чистоту объекта возможна ипотека с особыми условиями для клиентов МИЭЛЬ от банков-партнёров, работаем с любыми источниками финансирования (материнский капитал, военный сертификат и т.д.) бонусы по партнёрским программам МИЭЛЬ на товары и услуги от известных брендов.

Квартира на карте

ПанорамыКарта
Спецпредложения
Добавить объявление